
kleines Ladengeschäft in 01097 Dresden, Barockviertel
Objektdetails
Beschreibung
Das Objekt befindet sich in einem schönen Wohn- und Geschäftshaus (Eckhaus) in einer tollen barocken Nebenstraße. Der kleine Laden mit WC liegt im Erdgeschoß - gut sichtbar.
Bad
Dusche
Bodenbelag
Fliesenboden
Parkettboden
Heizungsart
Zentralheizung
Barrierefrei
barrierefrei
Verfügbar ab
Oktober 2026
Baujahr
1910
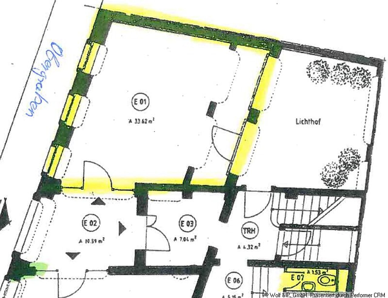
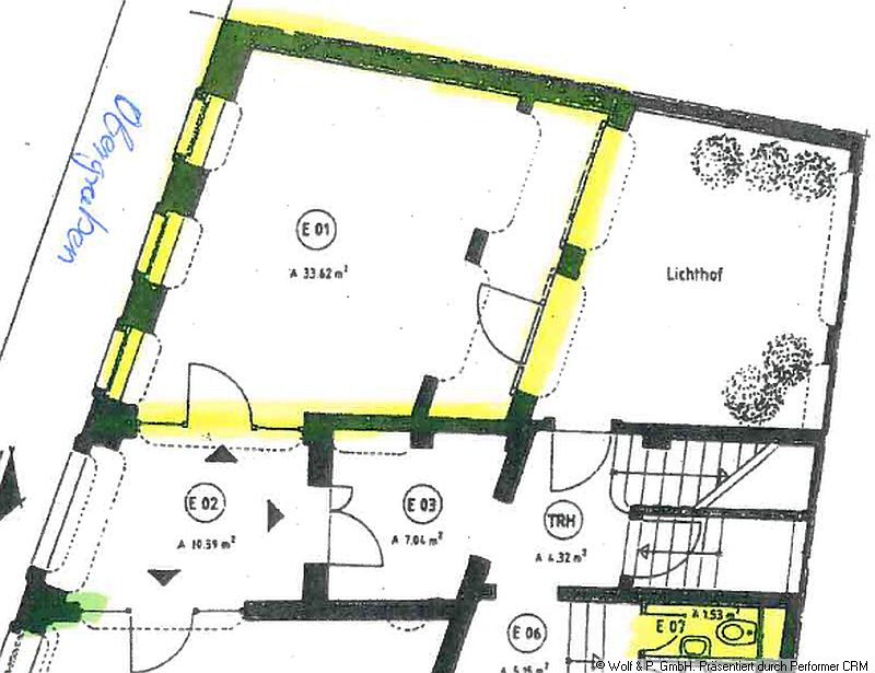
Flächen - Laden
30
Gesamtfläche
38 m²
Etage
0
Etagenanzahl
3
Kaltmiete
418 €
Nebenkosten
100 €
Kaution
1.254 €
Adresse
Obergraben 17a
01097 Dresden
Grundriss

Lagekarte
Google Maps - Mit der Aktivierung wird eine Verbindung zu Google aufgebaut und ggf. personenbezogene Daten gesendet.
Objektbilder

Hausansicht neu!!!

Ansicht Ladenfenster und Eingang

Ladenbereich

Zugang zum WC

WC
Weitere Angaben
Ausstattung
sanierter Altbau, Denkmal, EG, Parkett im Ladenbereich; Fliesen im WC (WC im Treppenhaus), 3 Schaufenster zur Straße hin und 1 größeres Schauglas als Eingangsbereich;
Lage
01097 Dresden, Barockviertel - Innere Neustadt; bekannte und beliebte Wohn-u. Geschäftsadresse; Gastronomie+Läden+Kultur in der Nähe;
Weitere Informationen
bezgsfertig ab Oktober 2026;
Mindestmietzeit: 2 Jahre;
keine Provision,
alle Kosten und Preise verstehen sich zzügl. Mwst.,
Alle in diesem Angebot enthaltenen Angaben, Darstellungen und Preise stammen ausschließlich vom Eigentümer oder eines Dritten. Eine Haftung unseres Unternehmens hierfür ist ausgeschlossen. Irrtum und die zwischenzeitliche Vermietung der Gewerbeeinheit bleiben vorbehalten. Dieses Exposé ist eine Vorabinformation, als Rechtsgrundlage gilt allein der abgeschlossene Mietvertrag.