Hausansicht Grillparzer Straße 19 class=

Cotta, tolle 3-Zimmer-Altbau-Wohnung mit Balkon, Hochparterre

tolle und sehr schöne 3-Zimmer-Altbau-Wohnung im Hochparterre mit Balkon und 2 Bädern

Etagenwohnung

01157 Dresden

81 m²

Objektdetails

Beschreibung

sehr schöne 3-Zimmer-Altbau-Wohnung im Erdgeschoß mit Balkon und 2 Bädern in DD-Cotta;

Bad

Badewanne

Bad mit Fenster

Küche

Einbauküche

Böden

Fliesenboden

Teppichboden

Parkettboden

Heizung

Zentralheizung

Heizungsart

Gas

Aufzug

Personenaufzug

Sonstige Merkmale

Kellerabteil

Gäste-WC

Verfügbar ab

ab Januar 2026

Baujahr

1910

Zimmer

3

Wohnfläche

81 m²

Etagenanzahl

3

Kaltmiete

730 €

Nebenkosten

230 €

Warmmiete

960 €

Kaution

1600 €

Lagekarte

Adresse

Grillparzer Straße 19

01157 Dresden

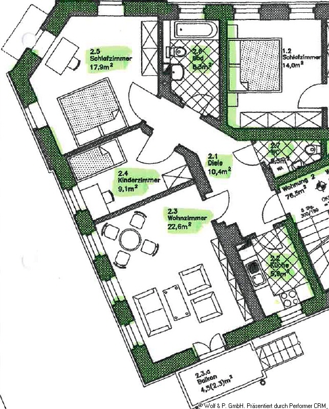
Grundriß WE 2, EG links

Grundriß WE 2, EG links

Objektbilder

Hausansicht Grillparzer Straße 19

Hausansicht Grillparzer Straße 19

Wohnen

Wohnen

Kind

Kind

Bad

Bad

Küche

Küche

Gäste-WC

Gäste-WC

Flur

Flur

Schlafen

Schlafen

Balkon

Balkon

Keller

Keller

Ausstattung

sanierter Altbau; Hochparterre; geräumiger Balkon; helle Wohnräume; alle Zimmer mit Fenster; großes Bad mit Fenster+Wanne+WC+Waschtisch, sep. Gäste-WC mit WM-Anschluß; Fliesen in Küche und Bad; Parkett im Wohnzimmer; Laminat in Schlafen und Kind; Kellerraum;

Lage

01157 Dresden - Cotta, Grillparzer Straße 19, Nebenstraßenlage; Bus und Bahn sowie Einkaufen in der Nähe; schnelle Anbindung an die Innenstadt und die Autobahn BAB 4;

Weitere Information

bezugsfertig ab Januar 2026; keine Staffelmiete; Mindestmietzeit: 15 Monate; 150,00 € zzügl. Mwst. Mietvertragsabschlußgebühr; ACHTUNG: Hundehaltung ist im Objekt NICHT erlaubt !!!!

Bild wird hochgeladen
Bild erfolgreich hochgeladen